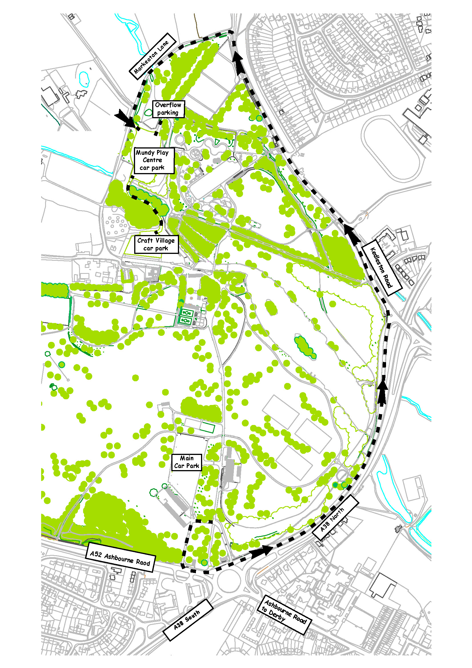
Mundy Play Centre

Mundy Play Centre at Markeaton Park

Free play facilities

Open weekends, Bank Holidays and school holidays.

The play area in the Mundy Play Centre is free to access and is open daily.  

Paddling pool, bouncy castles and car & track 

Mundy Play activities including bouncy castles and the car track, are open at weekends and during school holidays until October, weather permitting.  The paddling pool's usual operating period is from Spring Bank Holiday at the end of May until early September.

Play areas

The play area in the Mundy Play Centre is free to access and is open daily.  Numbers are limited in line with the current government guidance.

The play areas provide fun equipment for children to enjoy, up to twelve years old. There is a dedicated toddler area with swings, a slide and climbing equipment. For older children, there are large swings, slides and a spider net. The Adventure Galley pirate ship provides an inclusive and accessible play unit suitable for disabled children.

Just outside of the play area is a wheeled sports park with a number of jumps and grind bars suitable for BMX bikes, skateboards and scooters.

Mini Golf

We've got two 9-hole courses with challenging features such as ramps, bends, slopes and bumps, the course has been designed to be fun for all the family – especially those who like a little healthy competition! The course is wheelchair accessible. 

Open 10.30am - 4.30pm every weekend, Bank Holiday and daily during school holidays (weather permitting)

Pitch and Putt / Footgolf/ Disc Golf

Try your skill at our nine hole Pitch and Putt course, or try the new sport of Footgolf! Open from Apr - Oct, from 10.30am on weekends, Bank Holidays and daily during school holidays (weather permitting).

Tennis Courts

There are two hard surface tennis courts available to book for 1 hour sessions. The courts can be booked online where a code is provided to access the gate. At certain times the courts are available to play for free. Visit the Tennis pages for opening times, prices and availability.

High Ropes

Take on the Tree House Trek at Markeaton Park! The challenging tree-top adventure located next to Mundy Play Centre has various ropes course options, a leap of faith and zip-line. On any visit you’ll be challenged to manoeuvre obstacles, platforms, tunnels and climbing ropes as you make your way around this thrilling adventurous activity. Book your space now!